Канализационная насосная станция (КНС) Sanicubic 1 IP 67 - это профессиональное устройство, которое позволяет создать эффективную систему принудительной канализации для большого объекта, которыми может быть частный загородный дом или общественное помещение. Подключить к станции можно большое количество сантехнических приборов.
Насос подходит для оборудования дома или офиса всей необходимой сантехникой. Один прибор отлично справляется с высокой нагрузкой, позволяя подключить к принудительной канализации всю необходимое оборудование.
Гарантия - 3 года.
Производитель – SFA Group, Франция. Насосная станция Sanicubic 1 IP 67 оснащена технологией измельчения Pro X K2, позволяющей удалять сточные воды через трубу с малым диаметром 50 мм. Насос можно подключить как к автономной канализации, так и к септику. ПРЕИМУЩЕСТВА:
ТМ МЕНЕДЖМЕНТ предлагает выгодные условия покупки КНС SFA. Наличие на складе, быстрая доставка и специальные условия для организаций и монтажников. Звоните, специалисты отдела насосного оборудования подберут подходящий вариант: +375 (29) 77-55-427Купить канализационная насосная установка
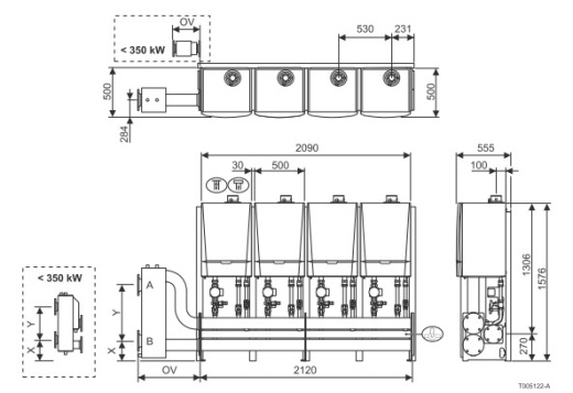
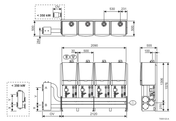
| Мощность (80/60°С) кВт | Модель котла |
Расход ΔТ=20 К, м.куб/.час |
Обозначение | ||||
| АМС 45 | АМС 65 | АМС 90 | АМС 115 | МСА 160 | |||
| 160 | 4 | 0 | 0 | 0 | 0 | 6,86 | LV.0160kW.40000 |
| 244 | 0 | 4 | 0 | 0 | 0 | 10,46 | LV.0244kW.04000 |
| 336 | 0 | 0 | 4 | 0 | 0 | 14,40 | LV.0336kW.00400 |
| 416 | 0 | 0 | 0 | 4 | 0 | 17,90 | LV.0416kW.00040 |
| 608 | 0 | 0 | 0 | 0 | 4 | 26,20 | LV.0608kW.00004 |
Настенный конденсационный котел De Dietrich серии Evodens AMC Pro — это строгий дизайн, простой монтаж и внутренняя подсветка для удобства обслуживания.
Новая погодозависимая панель Diematic Evolution эффективно управляет работой котла в зависимости от потребностей, модулирующая газовая горелка усиливает преимущества эффекта конденсации, при этом гарантируя низкие выбросы вредных веществ.
Благодаря предварительной настройке на заводе котел можно быстро установить и легко запустить на магистральном газе.
ПРЕИМУЩЕСТВА:

