По популярности (возрастание)
По популярности (возрастание)
#PROP_TITLE#
#PROP_VALUE#
Напольные газовые/жидкотопливные котлы
Тепловые насосы
Настенные конденсационные котлы
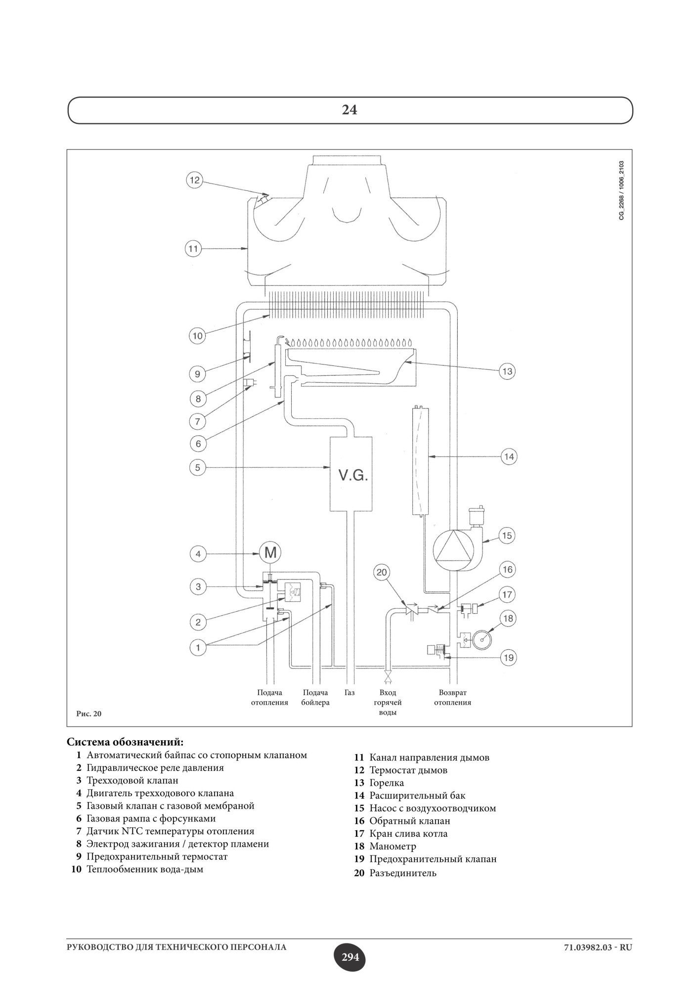
Автоматика
Настенные газовые котлы
Настенные конденсационные котлы
Напольные газовые/жидкотопливные котлы
Настенные газовые котлы
Напольные газовые/жидкотопливные котлы
